お陰様で事業開始30年以上。駐車場のプロにお任せください!
管理駐車場
871
管理台数
12182
住所例:高崎市常盤町133(町名まで必須・番地なしでもOK!)
駅名例:高崎駅

絞り込み検索

条件を指定して探す

人気のスポットから探す

月額利用料金

空車状況

特 徴

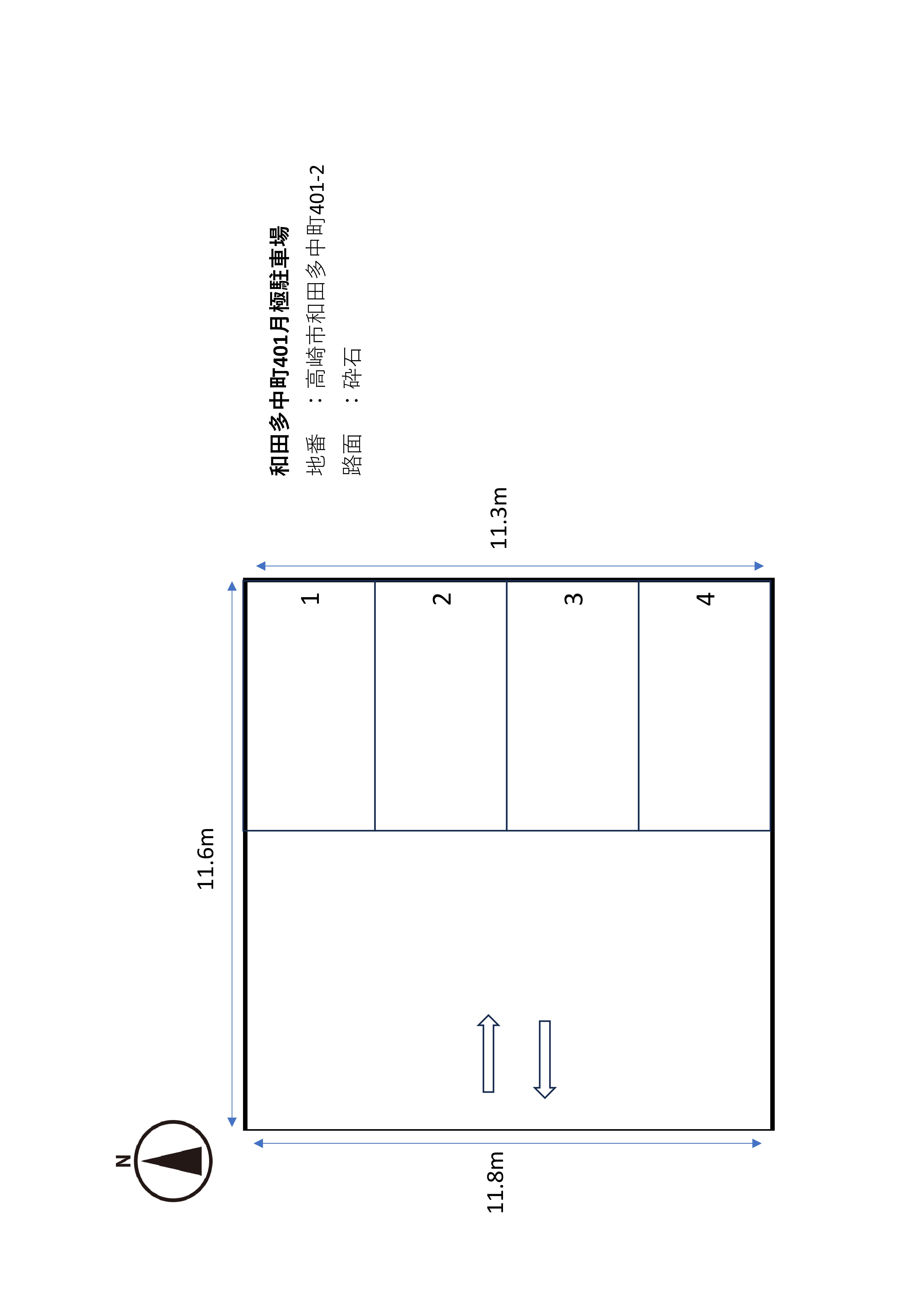
和田多中町401月極駐車場

5,500円(税抜価格5,000円)
状況
満車
受付
空き待ち予約受付中!近隣駐車場も紹介できます。
所在地
高崎市和田多中町401-2
料金
5,500円(税抜価格5,000円)
目安
上佐野西信号の南西70m
特徴
線引あり・番号なし・弊社看板あり
※入口段差が約9cmある為、車高短の車ご駐車不可
路面
未舗装
総台数
4台
大好評 便利機能! 目的地から駐車場までの
経路・時間を一発表示!

ご契約時に必要な書類

・免許証写し(表面/裏面)
・車検証写し
・自動車検査証記録事項 履歴事項全部証明書
・(個人の場合は現住所を確認できる書類)

※自動車納車前もしくは購入前の場合でもお申し込みいただけます
※履歴事項全部証明書は法人契約の場合のみ必須となります

和田多中町401月極駐車場 を
ご契約中の方のお手続き

近隣の空き駐車場

和田多中町市川

4,000円/月
群馬トヨペット高崎佐野店の西100m
ジョイフーズの北西150m
人気のエリアです!
国道17号線近く!

和田多中清水

4,500円/月
上佐野県営住宅団地の西隣
群馬トヨペット㈱佐野店の北西240m
県営住宅団地のすぐ近く!

和田多中町シンセキ

4,000円/月
群馬トヨペット㈱の北西200m
上佐野県営住宅の北西250m
人気のエリアです!

和田多中町山田第一

4,000円/月
群馬トヨペット高崎佐野店の北130m
ジョイフーズ上佐野店の北200m
人気のエリアです!

和田多中町やまきち

5,000円/月
上佐野県営住宅団地の西隣
群馬トヨペット㈱佐野店の北北西210m
国道17号近く!
人気のエリアです!

高崎アリーナ南

39,600円/月
高崎アリーナの南西110m
南高崎駅の北190m
一括貸し駐車場!
小型車なら6台駐車(縦列)可能!

和田多中町清水地所1

4,800円/月
城南水処理センターの南東160m
市営住宅上佐野団地の北隣
人気のエリア!

和田多中町清水第3

4,500円/月
上佐野県営住宅団地の西隣
群馬トヨペット㈱の北西250m
便利な立地です!

新後閑町金澤

4,000円/月
上佐野西信号のすぐ北
高橋ニートハイツの南140m
人気のエリアです!
国道17号沿い!

上佐野AY

4,500円/月
ジョイフーズの南西140m
上佐野町第一公民館の北100m
舗装駐車場です!
人気のエリアです!

上佐野AY第2

4,500円/月
ジョイフーズの南西200m
上佐野町第一公民館の北西70m
舗装駐車場です!
国道17号すぐ近く!

和田多中町清水地所2

5,500円/月
城南水処理センターの東110m
市営住宅上佐野団地の北隣
人気のエリアです!
国道17号線近く!

上佐野町第二

4,000円/月
ジョイフーズの南西50m
群馬トヨペット高崎佐野店の南150m
人気のエリアです!
国道17号線近く!

新後閑町市川東

5,000円/月
サンクレイドル高崎ガーデンコートの南南東100m
南高崎駅の南東140m
高崎新後閑町郵便局の南南西250m
城南大橋すぐ近く!
便利な立地です!

新後閑町つちや第二

4,500円/月
上佐野西信号の北西50m
高崎ニートハイツの南西115m
舗装できれいな駐車場!人気エリア!

和田多中町やまきち第三

4,500円/月
市営上佐野団地の120m
琴平神社の南東220m
国道17号近く!
人気のエリアです!

和田多中町SG

5,000円/月
新後閑町交差点の北160m
双葉町交差点の南360m
高崎駅東口の南770m
人気のエリアです!!
高崎駅まで徒歩14分
高崎アリーナ至近

新後閑町A・I

5,000円/月
南高崎駅の南東100m
城南小の北東100m
高崎新後閑郵便局の南西220m
線引きあり・番号あり・弊社看板あり

和田多中町130

5,500円/月
新後閑町交差点の北東角
一括利用者募集
詰め込み駐車可能 広々1台利用~お得に詰め込み駐車までご自由にお使いいただけます
東口まで徒歩15分
線引きなし・番号なし・弊社看板あり

和田多中町N

5,500円/月
上佐野西交差点から南に120m(直線距離)
線引きあり・番号あり・弊社看板あり
ユーザーTOPへ戻る